














Det finns även fler val hustyp för er som köpare.
Husen byggs med platta på mark, goda isolervärden samt värmepump med låg driftkostnad. Tomten är schaktad och grovplanerad. Endast finplanering kvarstår.
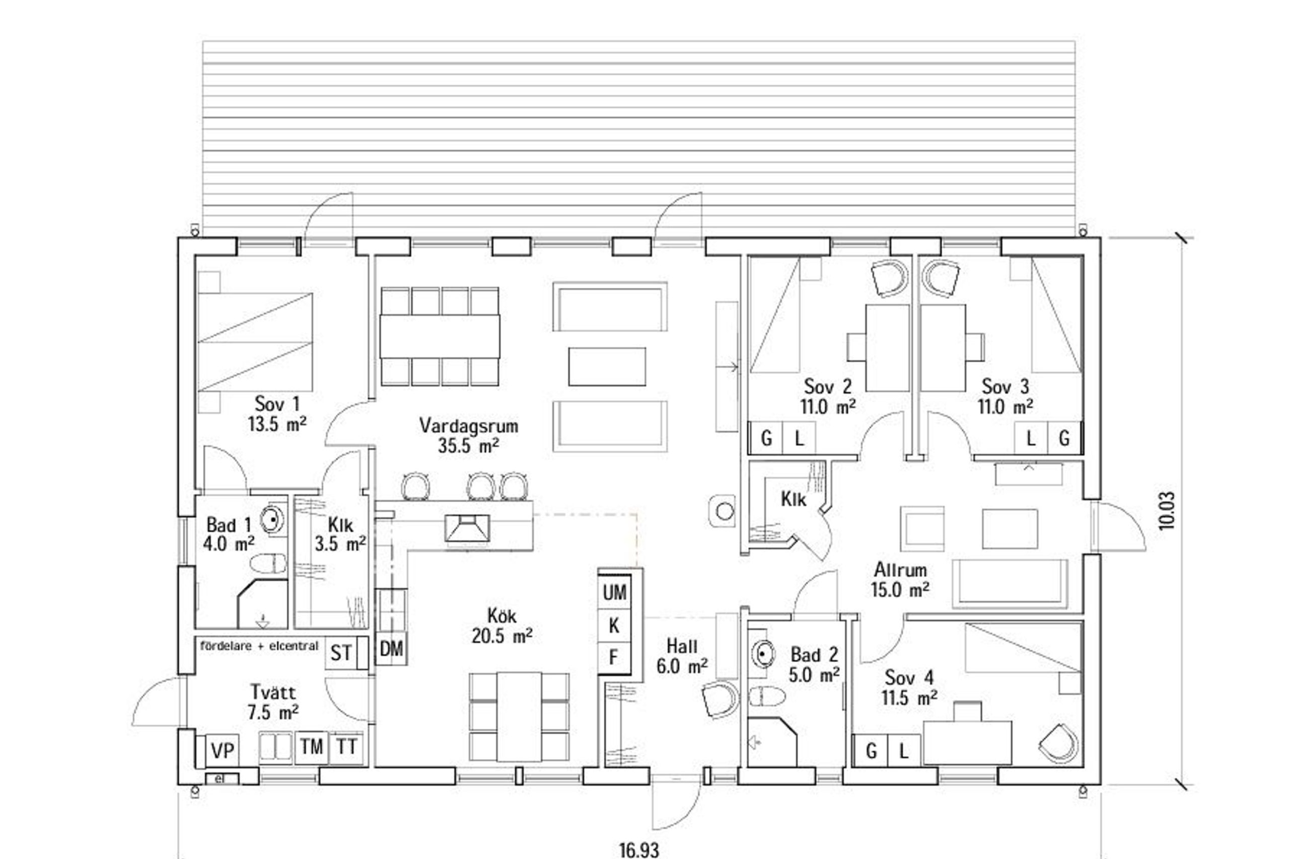
Villa 153 har en öppen planlösningen som gör vardagsrummet och köket till en naturlig mötesplats där hela familjen kan samlas.
De fyra sovrummen är strategiskt placerade för att ge både vuxna och barn sitt eget utrymme, med föräldrasovrummet på ena sidan av huset och barnens del på den andra.
Köket är modernt och praktiskt, med en bardel som öppnar upp mot vardagsrummet och skapar en öppen och social miljö.
Den rymliga umgängesdelen i mitten av huset har utsikt både mot entrén och trädgården, och de stora fönstren bidrar till att göra rummet ännu ljusare och mer inbjudande.
Villa 153 är inte bara yteffektivt utan kan också anpassas efter era behov och önskemål.
Välj mellan olika färgsättningar, spröjsade fönster, skjutpartier och andra detaljer för att skapa ett hem som passar just er stil och era behov.
Välkomna att kontakta oss!
Vi kan hjälpa er med allt i processen. Så som att välja tomt, alla dokument och all dokumentation som ska tas fram till bank, byggnadskontor, myndigheter kommun etc.
Vi tar fram en husmodell enligt dina önskemål i samarbete med vår arkitekt alt. enligt våra omtyckta husmodeller.
Vi hjälper till med all form av byggnation, och vi arbetar med fasta priser. Vi arbetar alltid med totalentreprenad vilket är inkluderat i priset till skillnad från många andra husleverantörer.